老屋翻新嶄新容顏!以溫暖的韻味療癒每一天,溫煦日光從玄關 灑落,構築自然客、餐廳的美好居家-設計家 Searchome

設計公司:源質室內裝修設計工程
設計師:林大鈞
設計風格:鄉村風
屋齡狀況:老屋(16~30年)
空間坪數:28.6/坪
空間格局:三房
房屋類型:單層
主要建材:乳膠漆、海島型木地板、超耐磨木地板、木紋磚、石英磚/拋光石英磚、木作 貼皮、系統板材、大理石、磁磚、水泥/水泥粉光、木百葉、線板、噴漆

小編帶你看好宅

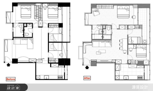
台北市中山區精華地段的居宅,是屋主已經居住了25年的住家,屋齡達到30年的老屋,住久了 難免有漏水、管線老舊、噪音、格局破碎及收納不佳等問題,期望能找到值得信賴的設計公司徹 底規劃改造,屋主裝修前努力做功課,並經由其親友介紹位於新店的源質室內裝修設計工程公 司,在新店區深耕十幾年擁有良好口碑,討論期間不僅溝通過程良好,還有豐富經驗與合法登記 施工證照等,讓屋主安心交付所託。

除了原本老屋的基礎工程問題外,屋主還期望重新裝修後的新家,能夠改善過往居住使用上的缺 點,設計師團隊盤點需求後,逐一與屋主討論設計上的解決方案,以暖白色系為主軸,並利用微 調格局改善空間,以帶入些許美式鄉村風格為基調,運用多元異材質拼接、美型收納與燈光設 計,讓老屋煥然一新,化身淡雅清新的溫馨居宅,居住其中也能感受設計師的用心。

玄關保留窗戶的明亮採光,木百葉讓光線若隱若現,為空間增添一份浪漫悠閒的氛圍,鞋櫃收納 以大理石板面及美式門板設計,美感與實用功能兼備。公領域以白色及暖灰色為基調,完善的格 局讓動線更加流暢,營造溫潤且寧靜的氛圍,牆面融合展示與收納機能,立面設計井然有序,不 僅美觀更兼具實用性,廊道盡頭的餐邊櫃結合落地型抽拉邊櫃、檯面與櫃體,提升收納靈活性, 讓整體坪效發揮至最大值,同時維持空間的整潔與美感。

主臥經過格局調整,原本的兩間房被巧妙合併,打造出更為寬敞舒適的私人領域,窗邊新增的休 憩區,則成為寧靜放鬆的專屬天地,夜幕降臨時,男主人或女主人可以慵懶地倚靠在舒適的座椅 上,靜靜觀看喜愛的影集,享受一場不被打擾的 Me Time時光,讓臥室不僅是休憩之處,更是 心靈沉澱的專屬角落。兒子房及客房以灰色的調性鋪陳,牆面與軟裝色彩相互呼應,圍塑沈穩放 鬆的休憩場域。浴室的空間皆設置乾溼分離的規劃,並於主浴淋浴間增設座位平台,提升安全與 舒適。

小編的最愛

將老屋的畸零空間充分運用,以造型去隱藏收納空間,美化收納並賦予海量收納的機能,居家表 情乾淨俐落,也能突顯牆面屋主收藏已久的畫作,展現藝術品味。老屋翻新不只是為了要重新整 理美化,更是為了安全考量,打造能長住久安的舒適環境。